
Luxembourg-Kirchberg
*** vendu***
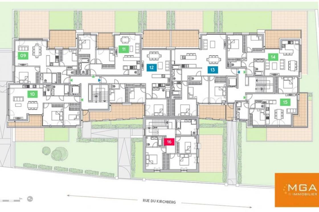
Résidence 'Les Hauts de Kirchberg'.
MGA Immobilier vous propose à la vente un appartement en l'état futur d'achèvement d'une surface d'environ 73,09 m2 (no14) situé à l'entrée du village de Kirchberg avec vue exceptionnelle sur la nature environnante.
L'appartement comprend: 1 living offrant un accès à la terrasse (12,78 m2), 1 cuisine, 2 chambres à coucher, 1 salles de bain, 1 WC.
Le bien est complété par une cave privée et un buanderie commune.
Vous apprécierez les espaces de vie et les matériaux de haut standing.
Classe énergétique: ABA
Certification 'BREEAM'
Un confort salutaire avec un service exclusif de conciergerie.
22 Appartements à vendre de 58,30 m2 à 169,91 m2
Début de la construction: mars 2017.
Le prix est de 860.870 EUR TTC (la TVA de 17% est déjà incluse).
Parking en supplément: 70.000 EUR TTC
N'hésitez pas à nous demander la brochure détaillée.